Sosnowe łóżko piętrowe 3 – osobowe
Łóżko piętrowe 3-osobowe z litej sosny to praktyczne i stylowe rozwiązanie dla rodzin z trójką dzieci, które dzielą jeden pokój. Jego naturalny wygląd, solidna konstrukcja i trwałość materiału sprawiają, że jest to doskonały wybór do każdego dziecięcego wnętrza – zarówno klasycznego, jak i nowoczesnego.
| Materiał | 100% lita sosna (mebel nie zawiera MDF) |
| Wykończenie | Lakier wodny bezbarwny (Lakier użyty do pokrycia łóżka odpowiada wymaganiom normy EN-71-3, co jest rekomendacją do lakierowania mebli oraz zabawek dla dzieci) |
| Stelaż | W komplecie do łóżka dwa stelaże listwowe zrobione z szlifowanych desek z drewna świerkowego (nielakierowanego). Stelaż “zagęszczony” oznacza, że będzie świetnie się sprawdzał z 99% materacy kieszeniowych i bonelowych dostępnych na rynku.
UWAGA: pamiętaj o przykręceniu wszystkich listew stelaża pod materac do listew mocujących na jakich kładziesz stelaż. Zabezpieczy to konstrukcje łóżka przed ruchami materaca na stelażu i usztywni jego konstrukcję. |
| Drabinka | Drabinka jest przystosowana do montażu zarówno po lewej jak i prawej stronie łóżka |
| Waga | Górna część jest dedykowana dla maksymalnego dopuszczalnego obciążenia 60kg + materac. Dolne łóżko 140kg + materac. |
| Powierzchnia spania | Górne dziecięce łóżko – 90×200 Dolna część – 140×200 |
| Gwarancja | 24 miesiące |
| Montaż | Łóżko do samodzielnego złożenia.
Do mocowania poszczególnych elementów wykorzystujemy śruby oraz elementy na kleju. |
| Czas montażu | 2 osoby – 120 min |
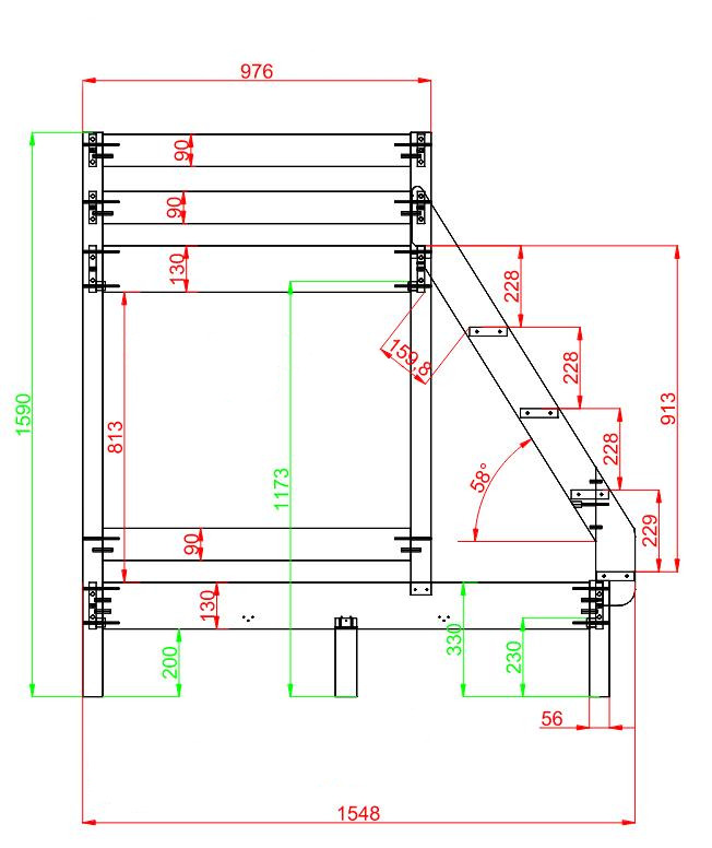
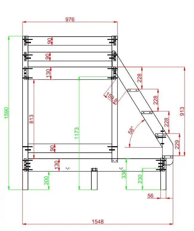
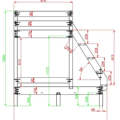
Wymiary:

✅ Najważniejsze cechy łóżka:
-
Materiał: 100% lite drewno sosnowe – bez dodatków MDF czy płyt wiórowych
-
Naturalna barwa drewna – pasuje do każdego stylu wnętrz: boho, skandynawskiego czy rustykalnego
-
Delikatnie widoczne słoje – estetyczne wykończenie z nutą przytulności
-
3-osobowa konstrukcja – idealna dla rodzeństwa lub rodzica śpiącego z najmłodszym dzieckiem
-
Stabilna drabinka – umożliwia bezpieczne wchodzenie i schodzenie z górnego łóżka
✅Trwałość i jakość na lata
Wykonane z wysokiej klasy litego drewna sosnowego, łóżko zapewnia niezwykłą trwałość i odporność na uszkodzenia mechaniczne. To mebel, który nie tylko prezentuje się estetycznie, ale również znosi intensywne użytkowanie przez dzieci przez wiele lat – bez utraty swoich właściwości.
✅Dla kogo to łóżko?
-
Dla rodzin z trójką dzieci dzielących jeden pokój
-
Dla osób szukających naturalnych i trwałych rozwiązań do pokoju dziecięcego
-
Dla rodziców, którzy cenią jakość wykonania i funkcjonalność
-
Dla każdego, kto chce zaoszczędzić miejsce, nie rezygnując z komfortu i estetyki
✅Dlaczego warto wybrać łóżko piętrowe 3-osobowe z sosny?
-
Ekologiczny, trwały i estetyczny materiał
-
Przemyślana konstrukcja dla dzieci i rodziców
-
Bezpieczne, przestronne i komfortowe rozwiązanie
-
Uniwersalny styl – wpasuje się w każdą aranżację
-
Produkt na lata, który rośnie razem z dziećmi
Łóżko piętrowe 3-osobowe z litego drewna sosnowego to mebel, który odpowiada na potrzeby współczesnych rodzin – łączy naturalność, bezpieczeństwo i praktyczność w jednym eleganckim rozwiązaniu.


















Opinie
Na razie nie ma opinii o produkcie.